中南高科 上海松江智造产业园

招商咨询热线:400-0571-233

扫码分享到微信
参考价格: 9800.00 元/㎡
独栋 位置好 产权已办 可贷款
园区地址: 直辖市-上海-上海市松江区书崖路168号
咨询热线:400-0571-233  
领取专项补贴
占地面积:50.00亩 消防等级:丙类
总 栋 数 :19栋 建筑结构:框架
容 积 率 :1.60 建筑面积:52000.00平方米
交房时间:2018年08月 产证:一房一证(已办理)
园区政策:G60上海松江科创走廊优惠政策
配套:然气管道入户、电力配备100KV/栋、城市自来水管网,2公里范围内,餐饮 商业 医疗等配套齐全,交通便利,地铁1/5/9/22号线,园区短程接驳车。G15和G60以及S32申嘉湖高速交会,直通江浙沪皖
园区介绍

中南高科上海松江智造产业园坐落于上海松江G60科创走廊,国家级松江开发区内,毗邻闵行开发区、漕河泾开发区和松江大学城。项目周边交通便利,配套齐全,通过沪昆高速(G60)、沈海高速(G15)可快速对接S32申嘉湖高速、S4沪金高速,2小时辐射长三角城市群。通过沪闵高架、轨交9号线、22号线可与市区快速接驳。项目占地50亩,总建面5.2万㎡,50年产权厂房,40%绿化率,260个车位,共有19幢产权独栋研发办公楼,是中南高科在上海松江打造的专业智能产业平台,定位为区域领先、国内一流的智能装备研发制造基地,计划引进高端装备制造、新能源、新材料、电子信息及互联网、机器人、生物医疗等优质企业,打造松江区战略新兴制造业集聚基地。


适合企业

高端装备,医疗器械,研发办公,仓储贸易,检测中试,机器人,新能源,精密加工,电子信息及互联网等。

园区户型
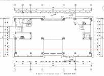
A户型
中南高科 上海松江智造产业园户型图 — A户型

建筑面积:约2797.34平方米

层高:5m+4.2m+4.2m+4.2m+4.2m

楼号:1# - 16#

层数:5层

B户型
中南高科 上海松江智造产业园户型图 — B户型

建筑面积:约2452.00平方米

层高:5m+4.2m+4.2m+4.2m+4.2m

楼号:17# - 19#

层数:5层

园区相册
楼栋信息
3#(售完)
17#-19#(售完)
13#(售完)
1#(在售)
4#-12#(在售)
14#-16#(在售)
3# 售完
主力面积约2452平方米
5层研发厂房,主力面积2452㎡。一层层高5米,为主生产层;2至5层4.2米层高,为辅助生产和管理工作层,布局方正,高承重,大柱距。预留客货梯井道,预留上下水管道,独立配电房,电力50kv/栋(后期可增容至100 kv/栋)。
17#-19# 售完
主力面积约2452平方米
独栋5层研发厂房,主力面积2452㎡。一层层高5米,为主生产层;2至5层4.2米层高,为辅助生产和管理工作层,布局方正,高承重,大柱距。预留客货梯井道,预留上下水管道,独立配电房,电力50kv/栋(后期可增容至100 kv/栋)。
13# 售完
主力面积约2797平方米
独栋5层研发厂房,主力面积2797㎡。一层层高5米,为主生产层;2至5层4.2米层高,为辅助生产和管理工作层,布局方正,高承重,大柱距。预留客货梯井道,预留上下水管道,独立配电房,电力50kv/栋(后期可增容至100 kv/栋)。
1# 在售
主力面积约2797平方米
共建19栋独栋5层研发厂房,主力面积2797㎡。一层层高5米,为主生产层;2至5层4.2米层高,为辅助生产和管理工作层,布局方正,高承重,大柱距。预留客货梯井道,预留上下水管道,独立配电房,电力50kv/栋(后期可增容至100 kv/栋)。
4#-12# 在售
主力面积约2797平方米
4#-12#均为在售,独栋5层研发厂房,主力面积2797㎡。一层层高5米,为主生产层;2至5层4.2米层高,为辅助生产和管理工作层,布局方正,高承重,大柱距。预留客货梯井道,预留上下水管道,独立配电房,电力50kv/栋(后期可增容至100 kv/栋)。
14#-16# 在售
主力面积约2797平方米
14#-16#均为在售,独栋5层研发厂房,主力面积2797㎡。一层层高5米,为主生产层;2至5层4.2米层高,为辅助生产和管理工作层,布局方正,高承重,大柱距。预留客货梯井道,预留上下水管道,独立配电房,电力50kv/栋(后期可增容至100 kv/栋)。